Préciser votre budget :
OK
Préciser les pièces :
OK
Préciser les chambres :
OK
Préciser la surface :
OK
Préciser la surface :
OK
Plus de critères
Retour aux annonces

A vendre Appartement 2 pièces Saint-Denis (97400) - Réunion

151 525 € FAI* soit 3 294 € /m²
miniature miniature miniature miniature miniature miniature
Empruntez aux meilleures conditionslogo meilleur taux

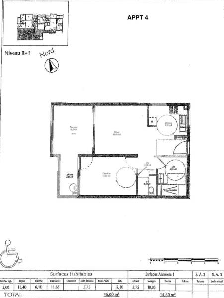
Appartement Saint Denis 2 pièce(s) 46 m2

L'agence Stéphane Plaza immobilier de Saint-Denis vous propose un T2 d'une superficie de 46m² situé au premier étage avec ascenseur, dans une résidence de standing sécurisée et proche de toute commodité, à Saint-Denis, Secteur Mongaillard ! Il se compose d'un espace cuisine, salle à manger, séjour et d'une chambre, d'une salle de bain avec douche à l'italienne et d'un WC indépendant ainsi que d'une grande varangue de 14,6m2 offrant un espace supplémentaire. Ne manquez pas cette opportunité. Contactez nous au [coordonnées réservées] . Prix du bien :151 525 euros FAI Honoraires à la charge du vendeur. Taxe foncière, estimée : 1135 euros Charges trimestrielles : 305.33 euros Mandat n° 141. Non soumis au DPE. Consommation énergétique primaire : non communiquée Consommation énergétique. Finale : non communiquée. Nombre de lots de copro : 24 dont 12 d'habitation. Pas de procédure en cours . Les informations sur le risque auxquels ce bien est exposé sont disponibles sur le site Géorisques : www.géorisques.gouv.fr Copropriété de 24 lots - dont 12 lots habitation. (Pas de procédure en cours). Charges annuelles : 1222.12 euros. DJIMMY MAILLOT (EI) Agent Commercial - Numéro RSAC : 802305813 - Saint-Denis.

Caractéristiques de cet appartement 2 pièces à vendre à Saint-Denis (97400)

  • Nombre de pièces : 2 pièces
  • Nombre de chambres : 1 chambre
  • Surface habitable : 46 m²
  • Référence de l'annonce : lot04-250
  • Prix de vente : 151 525 € FAI (Frais d'Agence Inclus)*
  • * Honoraires à la charge du vendeur
Empruntez aux meilleures conditionslogo meilleur taux

Cette annonce immobilière vous est proposée par :

STEPHANE PLAZA IMMOBILIER

97400 Saint-Denis

Ce bien vous intéresse ?
Contactez l'agence dès aujourd'hui...

En savoir plus sur l'agence STEPHANE PLAZA IMMOBILIER

Cette agence immobilière propose à ce jour 24 biens à la vente sur Immodesiles.fr.

Le barème d'honoraires de l'agence ne nous a pas été transmis.

Autres appartements à vendre à Saint-Denis (97400), susceptibles de vous intéresser

apt t2 st denis loué, pour investisseur 8 Appartement 2 pièces Saint-Denis (97400) 2 pièces, 1 chambre, 63 m² hab. Secteur Montgaillard, T2 sur un rez-de-chaussée surélevé avec vue dégagée, incluant un parking + une cave, actuellement loué à 698 euros TCC, (bail à effet du 24/07/2012), taxe foncière de 1488 euros (2025) - charges trimestrielles 332 euros - copropriété de 104 Lots (habitation, park... Réf. MOBLes Flamboyants 114 480 € soit 1 829 € /m² prmi-okarÉ immobilier : villa sur le toit t4 en duplex à saint-denis, quartier bellepierre 5 Appartement 4 pièces Saint-Denis (97400) 4 pièces, 3 chambres, 163 m² hab. Sur les hauteurs de Saint-Denis, dans l'environnement calme et pavillonnaire du quartier prisé de Bellepierre, l'agence PRMI-OKARE IMMOBILIER vous propose une villa sur le toit de 4 pièces dans la résidence « LES JARDINS D'ELYA », petite copropriété avec ascenseur de 14 appartements allant ... Réf. 5906_lot09-0125Prmi Nord/est 560 000 € soit 3 446 € /m² offrez-vous un f4 neuf de 137m2 au coeur de saint-denis, avec une grande varangue de 40m2 et vue mer 7 Appartement 4 pièces Saint-Denis (97400) 4 pièces, 98 m² hab. Vivez le confort et la modernité dans une résidence intimiste et récente, découvrez ce spacieux F4 de 137 m², dont 40 m² de varangue avec vue mer. Ses atouts : •Séjour lumineux de 40 m² donnant sur la varangue avec vue mer •3 chambres avec placards, dont une suite parentale avec salle de... Réf. 2839POfim 547 350 € soit 5 601 € /m² appartement saint denis  carré d'or 4 pièce(s) 78 m2 2 Appartement 4 pièces Saint-Denis (97400) 4 pièces, 3 chambres, 78 m² hab. L'agence Stéphane Plaza Immobilier de Saint-Denis vous propose des appartements neufs à venir au coeur du centre-ville de Saint Denis, à La Réunion. Profitez d'un emplacement exceptionnel offrant un cadre de vie unique. Ces logements sont éligibles au dispositif Girardin IS. N'hésitez pas à... Réf. 49-lot7Stephane Plaza Immobilier 641 000 € soit 8 218 € /m² t2 st denis montgaillard 5 Appartement 2 pièces Saint-Denis (97400) 2 pièces, 1 chambre, 60 m² hab. ? À VENDRE – Appartement F2 – Saint-Denis MontgaillardSitué dans une résidence sécurisée avec ascenseur, ce bel appartement F2 de 60,20 m² habitables + varangue de 8,20 m², au 1er étage, vous séduira par son calme et sa vue agréable sur le jardin intérieur.? Il se compose de :Un spacieu... Réf. 2459-ARHArh Immobilier 125 500 € soit 2 085 € /m²