Préciser votre budget :
OK
Préciser les pièces :
OK
Préciser les chambres :
OK
Préciser la surface :
OK
Préciser la surface :
OK
Plus de critères
Retour aux annonces

A vendre Terrain 369 m² Saint-Paul (97460) - Réunion

240 000 € FAI* soit 650 € /m²
miniature miniature miniature miniature
Empruntez aux meilleures conditionslogo meilleur taux

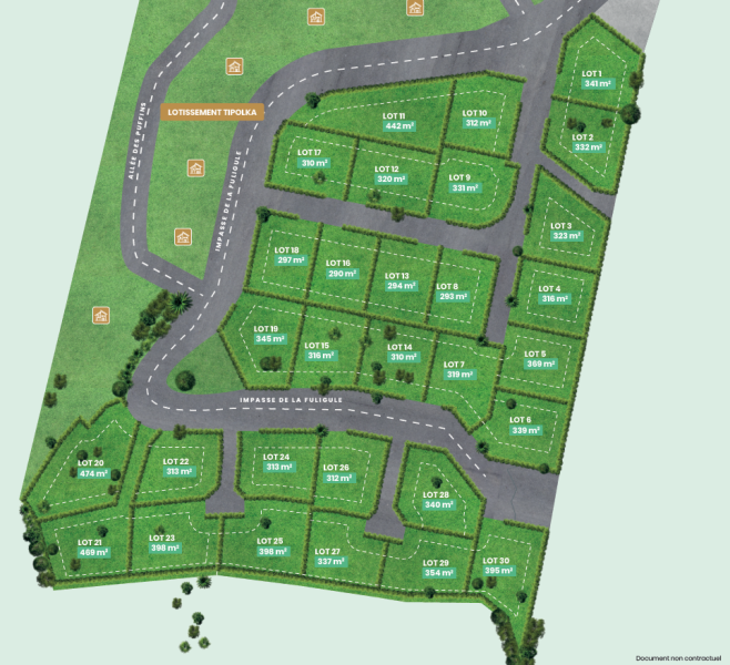
A VENDRE - PARCELLE VIABILISÉE DE 369 M2 À MARIE CAZE, LA PLAINE SAINT PAUL

Entre Savanna et la Plaine Saint Paul, CBo Territoria développe au coeur du nouveau Quartier de Marie Caze, le lotissement Zoiseau Blanc.Découvrez ces parcelles viabilisées et prêtes à bâtir, à proximité du lycée Saint-Paul IV, du CHOR et des commerces de proximité, et devenez propriétaire dans un environnement privilégié et résidentiel de l'ouest.Nous vous proposons cette parcelle de 369 m2 qui n'attend plus que votre future maison.
Prix de vente : 240 000 € FAI TTC Prix net vendeur : 226 980 € TTC Honoraires : 13 020 € TTC à la charge du vendeur
Les informations sur les risques auxquels ce bien est exposé sont disponibles sur le site Géorisques : www.georisques.gouv.fr

Caractéristiques de ce terrain à vendre à Saint-Paul (97460)

  • Surface habitable : 369 m²
  • Surface du terrain : 369 m²
  • Référence de l'annonce : 759-05
  • Prix de vente : 240 000 € FAI (Frais d'Agence Inclus)*
Empruntez aux meilleures conditionslogo meilleur taux

Cette annonce immobilière vous est proposée par :

L'AGENCE BY CBO

97438 Sainte-Marie

Ce bien vous intéresse ?
Contactez l'agence dès aujourd'hui...

En savoir plus sur l'agence L'AGENCE BY CBO

Cette agence immobilière propose à ce jour 94 biens à la vente sur Immodesiles.fr.

Vous pouvez consulter le barème d'honoraires de l'agence.

Autres terrains à vendre à Saint-Paul (97460), susceptibles de vous intéresser

À vendre - terrain de 656 m2  situé au guillaume - ref. 244659-c 4 Terrain 656 m² Saint-Paul (97460) terrain 656 m² Guetali IMMOBILIER a le plaisir de vous présenter une belle opportunité d'acquérir un terrain idéalement situé à l'entrée du Guillaume à SAINT-PAUL, à seulement 15 minutes de l'échangeur de Plateau Caillou. Ce terrain borné et arboré avec une légère pente d'une surface arpentée de 65... Réf. 244659-CGuetali Immobilier 226 000 € soit 345 € /m² parcelle de terrain avec vue mer à saint-paul 1 Terrain 349 m² Saint-Paul (97460) terrain 349 m² Belle parcelle de terrain de plus de 300 m², idéalement située à mi-hauteur de Saint-Paul, avec une vue mer exceptionnelle, offrant un cadre agréable et proche de toutes commodités. Ce terrain se trouve en zone Uc6, permettant une construction en R+1+combles avec une hauteur maximale de 9 mèt... Réf. 2853Outremer Immobilier 96 848 € soit 278 € /m² a vendre - parcelle viabilisÉe de 442 m2 À marie caze, la plaine saint paul 4 Terrain 442 m² Saint-Paul (97460) terrain 442 m² Entre Savanna et la Plaine Saint Paul, CBo Territoria développe au coeur du nouveau Quartier de Marie Caze, le lotissement Zoiseau Blanc.Découvrez ces parcelles viabilisées et prêtes à bâtir, à proximité du lycée Saint-Paul IV, du CHOR et des commerces de proximité, et devenez propriétair... Réf. 759-11L'agence By Cbo 320 000 € soit 724 € /m² 6 Terrain 490 m² Saint-Paul (97460) terrain 490 m² TERRAIN A VENDRE A SAINT PAUL DE LA REUNION, A BELLEMENE, à 380 mètres d'altitude, venez découvrir un terrain borné et plat d'une surface d'environ 490 m² . Vous profiterez d'une micro station neuve qui sera installée par le propriétaire, d'un raccordement en eau potable qui est d'ores et dÃ... Réf. GMRC-HWN-BLNAct'immo 263 000 € soit 537 € /m² parcelle de terrain avec vue mer à saint-paul 0 Terrain 400 m² Saint-Paul (97460) terrain 400 m² Belle parcelle de terrain de plus de 300 m², idéalement située à mi-hauteur de Saint-Paul, avec une vue mer exceptionnelle, offrant un cadre agréable et proche de toutes commodités. Ce terrain se trouve en zone Uc6, permettant une construction en R+1+combles avec une hauteur maximale de 9 mèt... Réf. 2854Outremer Immobilier 96 848 € soit 242 € /m²