Préciser votre budget :
OK
Préciser les pièces :
OK
Préciser les chambres :
OK
Préciser la surface :
OK
Préciser la surface :
OK
Plus de critères
Retour aux annonces

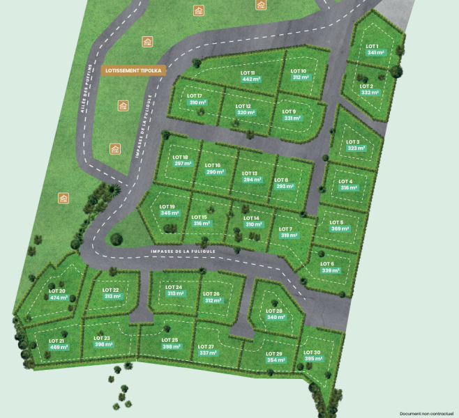
A vendre Terrain 331 m² Saint-Paul (97460) - Réunion

200 000 € FAI* soit 604 € /m²
miniature miniature miniature miniature
Empruntez aux meilleures conditionslogo meilleur taux

A VENDRE - PARCELLE VIABILISÉE DE 331 M2 À MARIE CAZE, LA PLAINE SAINT PAUL

Entre Savanna et la Plaine Saint Paul, CBo Territoria développe au coeur du nouveau Quartier de Marie Caze, le lotissement Zoiseau Blanc.Découvrez ces parcelles viabilisées et prêtes à bâtir, à proximité du lycée Saint-Paul IV, du CHOR et des commerces de proximité, et devenez propriétaire dans un environnement privilégié et résidentiel de l'ouest.Nous vous proposons cette parcelle de 331 m2 qui n'attend plus que votre future maison.
Prix de vente : 200 000 € FAI TTC Prix net vendeur : 189 150 € TTC Honoraires : 10 850 € TTC à la charge du vendeur
Les informations sur les risques auxquels ce bien est exposé sont disponibles sur le site Géorisques : www.georisques.gouv.fr

Caractéristiques de ce terrain à vendre à Saint-Paul (97460)

  • Surface habitable : 331 m²
  • Surface du terrain : 331 m²
  • Référence de l'annonce : 759-09
  • Prix de vente : 200 000 € FAI (Frais d'Agence Inclus)*
Empruntez aux meilleures conditionslogo meilleur taux

Cette annonce immobilière vous est proposée par :

L'AGENCE BY CBO

97438 Sainte-Marie

Ce bien vous intéresse ?
Contactez l'agence dès aujourd'hui...

En savoir plus sur l'agence L'AGENCE BY CBO

Cette agence immobilière propose à ce jour 94 biens à la vente sur Immodesiles.fr.

Vous pouvez consulter le barème d'honoraires de l'agence.

Autres terrains à vendre à Saint-Paul (97460), susceptibles de vous intéresser

parcelle de terrain avec vue mer à saint-paul 0 Terrain 400 m² Saint-Paul (97460) terrain 400 m² Belle parcelle de terrain de plus de 300 m², idéalement située à mi-hauteur de Saint-Paul, avec une vue mer exceptionnelle, offrant un cadre agréable et proche de toutes commodités. Ce terrain se trouve en zone Uc6, permettant une construction en R+1+combles avec une hauteur maximale de 9 mèt... Réf. 2854Outremer Immobilier 96 848 € soit 242 € /m² a vendre belle parcelle de terrain au calme à saint-paul bois rouge vue mer. 3 Terrain 1012 m² Saint-Paul (97460) terrain 1012 m² OFIM vous propose ce terrain avec une petite maison à démolir,. Idéalement bien placé dans une impasse au calme et vue mer. Ce terrain est situé à Bois Rouge Saint-Paul, à 20 minutes du centre ville de Saint-Paul. Ce terrain d'environ 1012 m2, viabilisé, n'attend plus que votre projet. Fosse... Réf. 763 LPOfim 342 000 € soit 338 € /m² a vendre - parcelle viabilisÉe de 310 m2 À marie caze, la plaine saint paul 3 Terrain 310 m² Saint-Paul (97460) terrain 310 m² Entre Savanna et la Plaine Saint Paul, CBo Territoria développe au coeur du nouveau Quartier de Marie Caze, le lotissement Zoiseau Blanc.Découvrez ces parcelles viabilisées et prêtes à bâtir, à proximité du lycée Saint-Paul IV, du CHOR et des commerces de proximité, et devenez propriétair... Réf. 759-17L'agence By Cbo 250 000 € soit 806 € /m² parcelle de terrain avec vue mer à saint-paul 1 Terrain 976 m² Saint-Paul (97460) terrain 976 m² À vendre – Terrain de 916 m² avec vue mer à Saint-Paul Parcelle de 916 m² située dans un secteur calme et recherché, offrant une vue mer exceptionnelle. Idéal pour un projet résidentiel ou d’investissement. Caractéristiques : – Zone PLU UC6 – Emprise au sol libre – Construction po... Réf. 2849Outremer Immobilier 254 190 € soit 260 € /m² À vendre - terrain de 656 m2  situé au guillaume - ref. 244659-c 4 Terrain 656 m² Saint-Paul (97460) terrain 656 m² Guetali IMMOBILIER a le plaisir de vous présenter une belle opportunité d'acquérir un terrain idéalement situé à l'entrée du Guillaume à SAINT-PAUL, à seulement 15 minutes de l'échangeur de Plateau Caillou. Ce terrain borné et arboré avec une légère pente d'une surface arpentée de 65... Réf. 244659-CGuetali Immobilier 226 000 € soit 345 € /m²