Préciser votre budget :
OK
Préciser les pièces :
OK
Préciser les chambres :
OK
Préciser la surface :
OK
Préciser la surface :
OK
Plus de critères
Retour aux annonces

A vendre Terrain 217 m² Saint-Pierre (97410) - Réunion

232 000 € FAI* soit 1 069 € /m²
miniature miniature miniature miniature miniature miniature
Empruntez aux meilleures conditionslogo meilleur taux

chez PRMI / Terrain constructible "Quartier pêcheur" Terre-Sainte (97410)

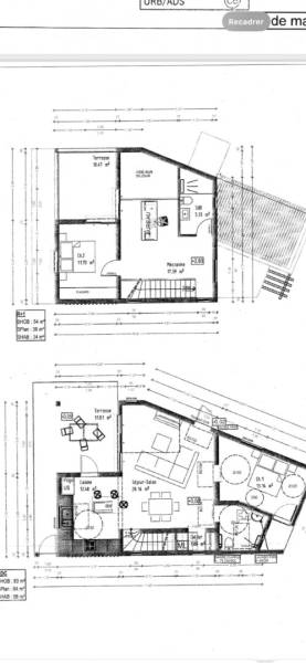
Emplacement très recherché : "Quartier pêcheur" Terre-Sainte ! Résidentiel et calme, proche de la promenade des Alizés, de la plage, des restaurants, des écoles et bien sûr des commerces du centre ville de Saint-Pierre ! Terrain de 217 m2 : plat, nu, à bâtir. Celui-ci bénéficie déjà d'un permis de construire obtenu en 2022. Pour y édifier une maison individuelle de 92 m2 (habitable) de type R+1. Voir plan + photos. -- IDEAL POUR UNE RESIDENCE PRINCIPALE / SECONDAIRE / LOCATION SAISONNIERE -- Informations complémentaires : - borné (via géomètre) - non viabilisé (mais raccordements proches y compris au tout à l'égout) - non clôturé -exposition (nord) ps : pas de copropriété, pas de lotissement et pas de servitude ! Visite possible avec le spécialiste de Saint-Pierre : Arnaud TREMOULET. Tél : [coordonnées réservées] ou [coordonnées réservées] Mail : [coordonnées réservées] Honoraires à la charge du vendeur. Bien non soumis au DPE. Les informations sur les risques naturels auxquels ce bien peut-être exposé sont disponibles sur le site : georisques.gouv.fr

Caractéristiques de ce terrain à vendre à Saint-Pierre (97410)

  • Surface habitable : 217 m²
  • Surface du terrain : 217 m²
  • Référence de l'annonce : 7414AT
  • Prix de vente : 232 000 € FAI (Frais d'Agence Inclus)*
  • * Honoraires à la charge du vendeur
Empruntez aux meilleures conditionslogo meilleur taux

Cette annonce immobilière vous est proposée par :

PRMI Sud/Ouest

Ce bien vous intéresse ?
Contactez l'agence dès aujourd'hui...

En savoir plus sur l'agence PRMI Sud/Ouest

Cette agence immobilière propose à ce jour 60 biens à la vente sur Immodesiles.fr.

Vous pouvez consulter le barème d'honoraires de l'agence.

Autres terrains à vendre à Saint-Pierre (97410), susceptibles de vous intéresser

saint pierre - 97410 -terrain plat bien proportionnÉ - potentiel indÉniable 2 Terrain 379 m² Saint-Pierre (97410) terrain 379 m² SAINT PIERRE 97410 - PRIX ATTRACTIF !! - Venez découvrir ce terrain plat et bien proportionné d'environ 379 m2, offrant un potentiel indéniable. Situé dans un environnement verdoyant et calme, ne manquez pas cette belle opportunité. Vue montagne. Tout à l'égout. À VISITER AU PLUS VITE ! Ref ... Réf. 25-5206Le Forum Immobilier 135 000 € soit 356 € /m² parcelle viabilisÉe de 246m2 À kaisary - grand bois 5 Terrain 246 m² Saint-Pierre (97410) terrain 246 m² Découvrez cette parcelle viabilisée et prête à bâtir de 246 m2 située aux portes de Saint-Pierre. Le lotissement Kaisary offre une véritable douceur de vivre aux futurs acquéreurs. Très bien placé dans le quartier de Grands Bois, le lotissement est idéalement placé à proximité d... Réf. 762-05L'agence By Cbo 130 000 € soit 528 € /m² parcelle viabilisÉe de 271m2 À kaisary - grand bois, saint-pierre 6 Terrain 271 m² Saint-Pierre (97410) terrain 271 m² Découvrez cette parcelle viabilisée et prête à bâtir de 271 m2 située aux portes de Saint-Pierre. Le lotissement Kaisary offre une véritable douceur de vivre aux futurs acquéreurs. Très bien placé dans le quartier de Grands Bois, le lotissement est idéalement placé à proximité d... Réf. 762-02L'agence By Cbo 135 000 € soit 498 € /m² saint-pierre - ligne paradis : terrain constructible de 374 m² 5 Terrain 374 m² Saint-Pierre (97410) terrain 374 m² L'agence PRMI de Saint-Pierre vous propose ce magnifique terrain constructible de 374 m². Situé dans le quartier résidentiel et paisible de La Ligne Paradis, ce terrain est idéalement placé à proximité des commodités (ZAC Canabady à 5 min en voiture et centre-ville de Saint-Pierre à 10 min... Réf. 7227BDPrmi Sud/ouest 184 000 € soit 492 € /m² parcelle viabilisÉe de 288m2 À kaisary - grand bois 2 Terrain 288 m² Saint-Pierre (97410) terrain 288 m² Découvrez cette parcelle viabilisée et prête à bâtir de 288 m2 située aux portes de Saint-Pierre. Le lotissement Kaisary offre une véritable douceur de vivre aux futurs acquéreurs. Très bien placé dans le quartier de Grands Bois, le lotissement est idéalement placé à proximité du nouve... Réf. 762-22L'agence By Cbo 140 000 € soit 486 € /m²