Préciser votre budget :
OK
Préciser les pièces :
OK
Préciser les chambres :
OK
Préciser la surface :
OK
Préciser la surface :
OK
Plus de critères
Retour aux annonces

A vendre Neuf Maison 4 pièces - Terrain 296 m² Saint-Pierre (97410) - Réunion

468 000 € FAI* soit 4 415 € /m²
miniature miniature

MAISON à vendre - Saint-Pierre

MAISON À VENDRE Saint-Pierre, quartier de la Cafrine:
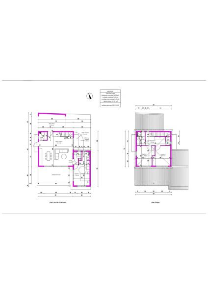
Le Cabinet Lemerle et Rivière vous propose cette maison de 106 m² habitables, en construction, située sur le secteur de la Cafrine. Pensée pour conjuguer esthétique et confort elle conviendra à votre vie de famille. Et point sérénité complémentaire : la garantie décennale.
 
DÉTAILS DU BIEN EN VENTE à La Cafrine, Saint-Pierre :
Dès l’entrée, vous serez séduit par la fluidité des espaces : un grand séjour ouvert sur une cuisine moderne et une salle à manger conviviale, prolongés par une belle terrasse pour profiter pleinement de l’extérieur.
La suite parentale au rez-de-chaussée garantit calme et intimité, avec sa salle d’eau privative. À l’étage, deux chambres, une salle d’eau et des toilettes indépendantes complètent harmonieusement l’ensemble.
Cette maison a été imaginée pour répondre aux besoins d’une vie de famille agréable, dans un environnement à taille humaine, à quelques minutes du centre-ville de Saint-Pierre.
Ce que vous allez aimer :
- Le confort d’une construction neuve réalisée dans les règles de l’art
- Des garanties décennales pour un achat en toute confiance
- La possibilité de choisir vos finitions selon vos envies
- Livraison prévue pour mars 2026
Les informations sur les risques auxquels ce bien est exposé sont disponibles sur le site Géorisques : www.georisques.gouv.fr
L'Avis de Muriel, votre conseillère en immobilier :
Cette maison allie modernité, luminosité et sérénité. Un projet idéal pour ceux qui souhaitent s’installer dans un cadre agréable tout en bénéficiant des garanties du neuf.
 
LES INFOS/ CONTACT:
Prix : 468.000 €, honoraires charge vendeur
Réf : MPR 3368
Négociateur : Muriel PAYET-RÉGENT : [coordonnées réservées]
Agent commercial sous le N° RSAC 934 502 410 à Saint Pierre
Annonce rédigée sous la responsabilité éditoriale de l'agent.
 
 
***
Cette annonce vous est proposée par l'agence immobilière: LEMERLE & RIVIERE à ST PIERRE REUNION.
Estimation de votre bien immobilier à ST-PIERRE (97410) au [coordonnées réservées].
LEMERLE & RIVIERE à ST-PIERRE REUNION, diffuse dans l'intérêt de ses clients, acheteurs et vendeurs, des centaines d'annonces immobilières afin de faciliter l'achat, la vente et la location de votre maison/ appartement/ terrain.
EN BREF: Faites-nous confiance pour acheter, vendre ou louer un bien immobilier à ST-PIERRE (97410). 
A bientôt!
Nos tarifs : http://www.lemerle-riviere.re/honoraires.pdf
 

Caractéristiques de cette maison 4 pièces à vendre à Saint-Pierre (97410)

  • Nombre de pièces : 4 pièces
  • Nombre de chambres : 3 chambres
  • Surface : 106 m²
  • Surface du terrain : 296 m²
  • Référence de l'annonce : MPR3368

Cette annonce immobilière vous est proposée par :

LEMERLE & RIVIERE

Ce bien vous intéresse ?
Contactez l'agence dès aujourd'hui...

En savoir plus sur l'agence LEMERLE & RIVIERE

Cette agence immobilière propose à ce jour 31 biens à la vente et 12 biens à la location sur Immodesiles.fr.

Le barème d'honoraires de l'agence ne nous a pas été transmis.

Autres maisons neuves à vendre à Saint-Pierre (97410), susceptibles de vous intéresser