Préciser votre budget :
OK
Préciser les pièces :
OK
Préciser les chambres :
OK
Préciser la surface :
OK
Préciser la surface :
OK
Plus de critères
Retour aux annonces

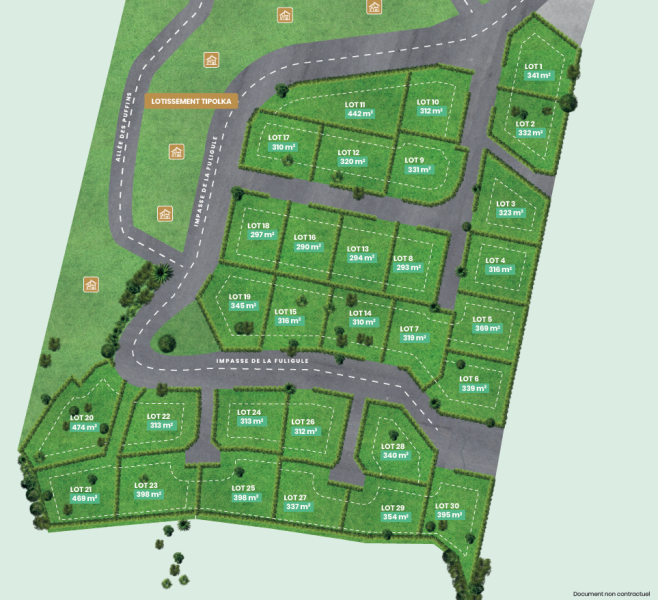
A vendre Terrain 316 m² Saint-Paul (97460) - Réunion

210 000 € FAI* soit 665 € /m²
miniature miniature
Empruntez aux meilleures conditionslogo meilleur taux

A VENDRE - PARCELLE VIABILISÉE DE 316 M2 À MARIE CAZE, LA PLAINE SAINT PAUL

Entre Savanna et la Plaine Saint Paul, CBo Territoria développe au coeur du nouveau Quartier de Marie Caze, le lotissement Zoiseau Blanc.Découvrez ces parcelles viabilisées et prêtes à bâtir, à proximité du lycée Saint-Paul IV, du CHOR et des commerces de proximité, et devenez propriétaire dans un environnement privilégié et résidentiel de l'ouest.Nous vous proposons cette parcelle de 316 m2 qui n'attend plus que votre future maison.
Prix de vente : 210 000 € FAI TTC Prix net vendeur : 198 608 € TTC Honoraires : 11 393 € TTC à la charge du vendeur
Les informations sur les risques auxquels ce bien est exposé sont disponibles sur le site Géorisques : www.georisques.gouv.fr

Caractéristiques de ce terrain à vendre à Saint-Paul (97460)

  • Surface habitable : 316 m²
  • Surface du terrain : 316 m²
  • Référence de l'annonce : 759-04
  • Prix de vente : 210 000 € FAI (Frais d'Agence Inclus)*
Empruntez aux meilleures conditionslogo meilleur taux

Cette annonce immobilière vous est proposée par :

L'AGENCE BY CBO

97438 Sainte-Marie

Ce bien vous intéresse ?
Contactez l'agence dès aujourd'hui...

En savoir plus sur l'agence L'AGENCE BY CBO

Cette agence immobilière propose à ce jour 94 biens à la vente sur Immodesiles.fr.

Vous pouvez consulter le barème d'honoraires de l'agence.

Autres terrains à vendre à Saint-Paul (97460), susceptibles de vous intéresser

terrain a batir 1 Terrain 1289 m² Saint-Paul (97460) terrain 1289 m² Terrain Constructible avec Vue Dégagée - Un Cadre de Vie IdéalDécouvrez ce terrain constructible de 1289 m², niché dans un environnement paisible et offrant une vue dégagée qui vous coupera le souffle. Imaginez-vous construire votre maison de rêve sur cette parcelle en pente, où chaque ang... Réf. 2468-ARHArh Immobilier 248 400 € soit 193 € /m² 5 Terrain 530 m² Saint-Paul (97460) terrain 530 m² TERRAIN A VENDRE A SAINT PAUL DE LA REUNION, A BELLEMENE, à 380 mètres d'altitude, venez découvrir un terrain borné et plat d'une surface d'environ 530 m² . Vous profiterez d'une micro station neuve installée, d'un raccordement en eau potable, d'un permis construire accepté et d'une vue mer ... Réf. J6R4-1NB-MR5Act'immo 283 000 € soit 534 € /m² parcelle de terrain avec vue mer à saint-paul 1 Terrain 349 m² Saint-Paul (97460) terrain 349 m² Belle parcelle de terrain de plus de 300 m², idéalement située à mi-hauteur de Saint-Paul, avec une vue mer exceptionnelle, offrant un cadre agréable et proche de toutes commodités. Ce terrain se trouve en zone Uc6, permettant une construction en R+1+combles avec une hauteur maximale de 9 mèt... Réf. 2852Outremer Immobilier 96 848 € soit 278 € /m² a vendre - parcelle viabilisÉe de 312 m2 À marie caze, la plaine saint paul 4 Terrain 312 m² Saint-Paul (97460) terrain 312 m² Entre Savanna et la Plaine Saint Paul, CBo Territoria développe au coeur du nouveau Quartier de Marie Caze, le lotissement Zoiseau Blanc.Découvrez ces parcelles viabilisées et prêtes à bâtir, à proximité du lycée Saint-Paul IV, du CHOR et des commerces de proximité, et devenez propriétair... Réf. 759-10L'agence By Cbo 220 000 € soit 705 € /m² a vendre - parcelle viabilisÉe de 369 m2 À marie caze, la plaine saint paul 4 Terrain 369 m² Saint-Paul (97460) terrain 369 m² Entre Savanna et la Plaine Saint Paul, CBo Territoria développe au coeur du nouveau Quartier de Marie Caze, le lotissement Zoiseau Blanc.Découvrez ces parcelles viabilisées et prêtes à bâtir, à proximité du lycée Saint-Paul IV, du CHOR et des commerces de proximité, et devenez propriétair... Réf. 759-05L'agence By Cbo 240 000 € soit 650 € /m²